2008-02-06

Lägenhetsuppdatering 6:e februari

När vi kom hem från Costa Rica så hade det hänt en hel del med vår lägenhetsrenovering. Våra kära entrepenörer Cecilia och Åsa hade visserligen lovat att det skulle vara klart tills vi kom hem, men även om vi hade packat våra saker för att kunna flytta in när vi kom hem så vågade vi ändå inte tro att det skulle vara klart.

Och det var det förstås inte heller! Däremot är det mycket som har hänt och det är verkligen "nära nu" på riktigt. Lovad inflyttning är nu den 16:e februari, troligare är väl att det sker den 23:e!

Men för den intresserade (hej mamma!) så har vi lite bilder på hur det ser ut just nu:Ritning.

Först en ritning på lägenheten, som vi provmöblerade i julas med programmet BoLive. Om inte annat så kanske ritningen hjälper för att hänga med på var bilderna nedan är tagna. Och glöm inte att klicka på bilderna för att få se dem i sitt allra mest högupplösta skick!

 

KöketHär är vårt älskade kök på plats! Det är platsbyggt av Erik Michélsen, en snickare från Öland. Erik har verkligen gjort ett superjobb, och det är kanonfinish på allting. Och faktiskt blev det inte mycket dyrare än ett standardkök från t.ex. Marbodal heller, fast vi har en massa speciallösningar...Köksön

Köksön "inifrån" köket. Ovanför vitrinskåpet skymtar man också bambu/grästapeten som sitter i hela snedtaket ovanför köksön och går som ett band via taket över till glasbetingväggen.

Sneda luckorSnedtaket gör att det blir en speciell lösning på luckan ovanför den inbyggda diskmaskinen

 

 

 

 

 

Vinkyl

Inget kök är väl komplett utan en köksö med vinkyl?!

 

 

Nu väntar vi bara på att bänkskivan skall komma så är köket klart!

GlasbetongväggVäggen mellan köket och hallen är i glasbetong, dels för att släppa in ljuset, och dels för att vi tycker att det är så jäkla snyggt! Som synes så är inte väggen spacklad och fixad ännu. Grästapeten ovanför köksön kommer att fortsätta upp i taket och sedan ned på denna vägg också.

Den blå plasten till höger är kyl/frys med skyddsplasten kvar.

 Förråd på kattvinden

På tre ställen i vardagsrummet och ett ställe i arbetsrummet så är det sådana här dörrar till förvaringsutrymmen på kattvinden (dvs utrymmet under snedtaket). Dörrarna är ungefär en meter höga, och utrymmet där bakom 1-1,5 meter djupt. De kommer till att börja med att göras så osynliga som möjligt, med bara en smal springa runt dörren, men det är möjligt att vi senare väljer att förstärka kanterna i stället, med ljus, en ram, eller nåt sånt.

Platsbyggd bokhyllaPå en annan av väggarna i vardagsrummet har vi gjort infällda bokhyllor. Eftersom kvadratmeterpriserna är som de är i Stockholm så vill vi verkligen utnyttja utrymmet så bra som vi bara kan. Ytan som den där bokhyllan står på kostar ju 30.000 - den dyrate bokhyllan vi nånsin haft i alla fall! :-) Just nu så utnyttjas det av byggjobbarna för deras saker, men sedan kommer det att bli en elegant bokhyllebelysning och plats för våra "finböcker".Plats för garderob

Det här är det utrymme i sängkammaren där vi kommer att ha stora garderoben. I den här nischen kommer det att bli elfainredning med backar, hyllor och garderobsstänger innanför skjutdörrar från Inaria. Till vänster skymtar dörröppningen. Alla innerdörrar utom den till badrummet är förresten skjutdörrar. GarderobsskissVi tror att vi inte kommer att vilja stänga dörrarna om oss speciellt ofta alls, så att de är lite jobbigare att öppna och stänga uppvägs av att det ser så snyggt ut och är så praktiskt i normalläget när de är öppna. Själva dörrarna (eller dörrbladen som proffsen säger) är specialtillverkade, MDF-skivor som laminerats för hand med wenge (samma som golvet).

Skiss och materiallista över garderobsinredningen.

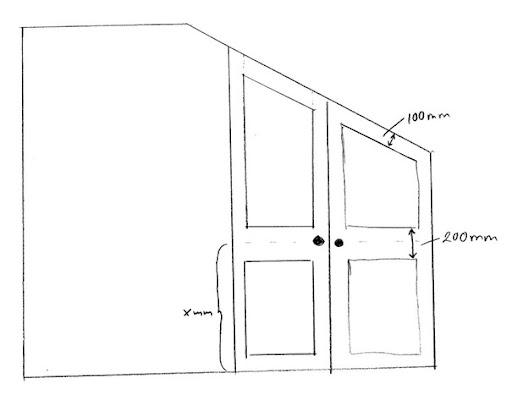
Garderobsdörrar

De här garderobsdörrarna skall vi ha. Typ i alla fall. Två av garderobsdörrarna skall ha speglar, de andra två skall ha mjölkvitt glas (om det inte blir tre dörrar), och trät skall vara i Wenge för att matcha golvet. Men annars är de likadana! :-)

Platsbyggd garderob/bokhyllaFörutom stora garderoben så har vi en garderob/bokhylle-kombination i sängkammaren också. Eftersom lägenheten trots allt är en ombyggd vind från 1860-talet så är den full av prång och konstiga vinklar, och vi har försökt använda dem så gott det går till sådana här kluriga lösningar. Väggen bakom den här kombinationen har tre olika djup!Skiss över garderobdörrar

Skiss över hur dörrarna skall se ut. Till vänster är det alltså bokhylla med en mycket klurig justering för hyllhöjd som vår snickare-och-mycket-annat Åsa har fixat till.

 

TegelväggPå andra sidan lägenheten så är det en liknande ojämn vägg, men i arbetsrummet har vi valt att accentuera ojämnheten i stället, genom att ta fram tegelväggen bakom. Så småningom skall det bli en platsbyggd bokhylla i den nischen, men vi funderar fortfarande hur den skall vara utformad och upphängd. Undrar vad Mona (förra ägaren) tänkte när hon valde den där tapeten!?Murstock och trägolv

Den här bilden visar ganska ointressant nederkanten på skorstensstocken, men det är också den enda bilden vi har på vårt helt underbara wengegolv, som är i hela lägenheten utom hallen och badrummet. Tyvärr är det svårt att förstå av den här bilden hur bra det ser ut när man ser det på ett helt golv, men lita på oss! Även golvlister och dörrfoder är i samma material, liksom dörrar och garderober. Vi hoppas(!) att det skall ge ett sobert och elegant intryck.

SpotlighthålHär är tre av spotlighthålen ovanför sängen. Totalt skall vi ha c:a 80 spotlights(!) (vi har tappat räkningen)  på ungefär lika många kvadratmeter! Och allt styrs genom ett datorsystem där man använder "scener". Typ vid "sänggående" så släcks taklamporna samtidigt som sänglampor och en golvlampa för mysbeslysning tänds. När väckarklockan stängs av så tänds ljuset i hallen och på toaletten automatiskt. När man trycker på "går hemifrån" i hallen så släcks alla lampor överallt, osv. Mer att läsa om detta finns på http://x10automation.blogspot.com för den som är nyfiken.Elskåp

Detta är en av elcentralerna, innan styrelektroniken för belysningen är på plats. Elinstallationen är så omfattande att det finns två elskåp i varsin halva av lägenheten!

Så här ser badrummet ut just nu (nedan) - fullt med byggmaterial och den nya tvättmaskinen och torktumlaren. De är av den grunda modellen, bara c:a 40 cm djupa, vilket gör att vi hoppas kunna få plats med dubbla handfat och en duschkabin. Men just nu orkar vi inte göra något åt badrummet, utan det får vara som det är tills senare i vår, men då skall vi göra om allt utom golv och väggar.

Badrum vänster Badrum mittenBadrum höger

I vardagsrummet bestämde vi oss tidigt för att ta bort Fuktskadabalkongdörr och fönster och ersätta dem med en stor vikvägg. På sommaren så kan vi öppna hela väggen så att vardagsrummet och terassen blir som ett enda rum! Men mindre kul var att det såg ut så här när vi började riva väggen:

Jajamen, fuktskador, och rejält med fuktskador dessutom. En del av spånskivorna där bakom var alldeles uppblötta och ramlade i bitar bara vi snuddade vid dem! Tur i oturen är att det inte är vår egendom utan föreningens, men det har ändå försenat hela projektet en hel del. Och antagligen kommer vi att få stå ut med ombyggnad ute på terassen till våren när värmen kommer... :-(

Inplastat hål i väggenMan kan i alla fall se vattenslingorna till det nya värmegolvet i kanten på bilden ovan.

Just nu så är väggen helt riven och täckt med en presenning, men i morgon så kommer vikväggen på plats!

På vägen ut ur lägenheten tar vi oss eKlädkammarenn snabb titt i hallen. Innanför ytterdörren var det tidigare en gästtoalett. Visst är det praktiskt med en extra toalett, men det är ännu mer praktiskt med mer garderobsutrymme, så vi har konverterat den till en klädkammare. För att få en enhetlig stil så skall vi sätta in en smal rad med glasbetong till vänster om dörren, för att anknyta till den stora glasbetongväggen mot köket, som är precis utanför bilden. Dörren är förstås en skjutdörr precis som de andra.

Så det är hur det ser ut just nu...hjälp oss hålla tummarna för att allt är klart om två veckor!

9 kommentarer:

thekax sa...

Men ska ni ha speglar på garderoberna? Då kunde ni få våra. Huga! Och tack för den "fina" länken. Stapplande försök ... Hm. Kanske bäst att lägga ner.

thekax sa...

Men ska ni ha speglar på garderoberna? Då kunde ni få våra. Huga! Och tack för den "fina" länken. Stapplande försök ... Hm. Kanske bäst att lägga ner.

Peter Hjalmarsson sa...

Menar du mina gamla garderobsdörrar? De som är så fina... :-)
Ja, kanske dags att ändra länken till dig - när vi lade in den så hade du ett enda inlägg om dina handskar. Men först får du bli lika proffsig som vi och lägga in annonser. :-)

englundhelena sa...

Thekax: Du ska absolut inte lägga ner! Det blir bara lite fel när en av oss glömmer fråga den andra om hur vår blogg ska formuleras.

Anonym sa...

Ser fram emot att få tassa på dessa golv. Håller tummarna för er.

Anonym sa...

Vad fint köket är! Vi håller tummarna för att allt ska bli klart i tid. Sen kommer vi gärna och tittar.
Kramar från mamma

Jossan sa...

Ser kanon ut!
Ser verkligen fram emot att se det färdiga resultatet sedan.
Lycka till med allt nu!

Peter Hjalmarsson sa...

thekax: Hur är det med reciprociteten då? Ingen länk till vår blogg varken på din blogg eller familjenguldbrand.com! :-)

.mats sa...

Jodå. På familjenguldbrand.com så finns det en länk till "Dinkis i Stockholm". Kolla under "Andra platser" ;-)